QLD | Logan | Berrinba

Berrinba

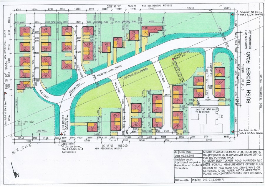
161-169 Bush Tucker Road

$4,850,000

EXCEPTIONAL DA & BA APPROVED FOR 36 TOWNHOUSES + 400M2 HOUSE

EXCEPTIONAL DA & BA APPROVED FOR 36 VILLAS + 400M2 HOUSE

16,250m2 of land with DA & BA fully Approved including the condition of Approval for 36 houses/units all 4bed 3bath 2 cars mostly detached on average 550m2 envelope, all houses/units are uniform with one plan included specification, so cost effective to build.

There is an easement overhead Hv.Ec.Li. with buffer zone corridor of 45mWx200mLx22mH which doesn't interfering in this development and it is separate entity of council Approved by Powerlink for safety, all infrastructural specifically located by council at the most downstream location at this land, no bulk earth working no cut/fill no any demolition or any retaining walls or excavation, this land is higher than the neighbours.

This natural vacant land has 3% slope toward the legal point of discharge for sewer and stormwater, all services e.g. (mitre box) of electric/water or mail box are at the front of each house, no other public open space or e.g. manager house or any public structures are allowed because this project IS NOT a private/grope housing or community development, and very low land rate.

The new road been dedicated to the council and council will include its own infrastructures. Again, cost effective.

NO body corps fees for this development so each owner/tenant will manage their own vegetation, lawn moving or maintenance. THE ROADS BEING PUBLIC, NO BODY CORPORATE.

There is a 140ha of entertaining public park in the front of this development (see famous Berrinba wetland park in Wikipedia). You can start immediately in full or 6 stages of development.

SOME CALCULATIONS: AVERAGE $850,000 PER VILLA, X 36 = $30,600,000 LESS CONSTRUCTION COST 36 X $400,000 = $14,400,000 LESS COST OF LAND PLUS TAX ETC $5,000,000 LESS LAND CONSTRUCTION COST $4,000,000 = $7,200,000

The existing house of 400m2 on a 900m2 block could be sold alone for $1.4m easily.

$7,200,000 + $1,400,000 = $8,600,000 GROSS PROFIT that is over 25% net profit on total turnover (total sales). This is a great business opportunity.

Call Reg on 0412 976 122 or Merinda Kim on 0437 643 181 for an inspection.

Features

Property ID

21601216

Land Size

1.62 Hectare approx.

Location

Community Realty

Your Details
Your Enquiry
  1. Please describe how we can be of assistance to you.

  2.  

    Would you like to join our mail list?

Submit

find our properties on squiiz.com.au

background image
background image
background image
background image
background image