
4

4

2

3
Welcome, This spectacular residence on an impressive 1024m2 block in a tranquil and sought-after pocket of Boronia Heights.
Renovated and well presented, this resort-style home showcases spacious and contemporary family living and the beautiful harmony between indoor and outdoor living.
If you are in search of a family home that exudes space, luxurious finishes and a quality build, look no further than this gem.
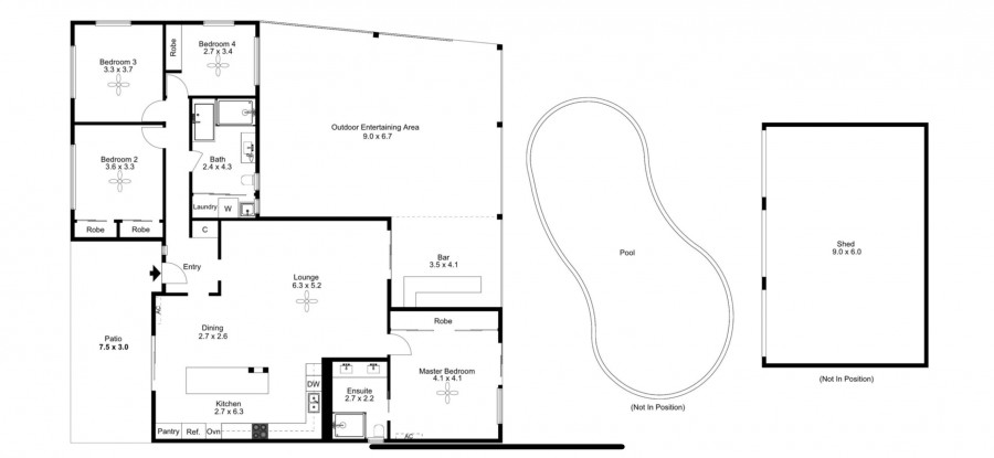
4 spacious bedrooms are on offer and the master retreat is spacious, air-conditioned and showcases a contemporary ensuite featuring ceiling to floor tiling and dual stone vanities in a classy and moody colour palette.
The main bathroom services the remaining bedrooms and is equally as impressive in design, function and stunning aesthetics. The rear of the property features a 3 bay lockable shed to stow away your favourite big toys as well as convenient side access and a remote front gate.
In addition to this, there is a separate 6m x 9m garden shed. Enjoy the surrounding parklands and make this your future lifestyle location. With schools, shops, parks, entertainment precincts and access to major arterials all within close proximity, capitalise on everything this wonderful home has to offer.
Property Features and inclusions: - Stunning lowset home - Perched on a 1024m2 block of land - Built approx 1982 - Floor plan size approx 225m2 - 4 spacious bedrooms - Master boasts BIR, air-con and ensuite - 2 contemporary bathrooms - Large, open plan living area - Spectacular gourmet kitchen - Tiling throughout living areas - Timber-look flooring throughout bedrooms - Designer lighting throughout home - Security screens - Large Covered alfresco entertaining - 10,000 Ltr water tank - Fully fenced with remote front gate - Side access - Large 6m x 9m garden shed - Inground pool -
Build pest control report just done and available on request
Swimming pool certificate just done.
Tenanted $800 Per week.
NBN Disclaimer: All information provided has been obtained from sources we believe to be accurate, however, we cannot guarantee the information is accurate and we accept no liability for any errors or omissions (including but not limited to a property's land size, floor plans and size, building age and condition) Interested parties should make their own enquiries and obtain their own legal advice.
Property ID
21573620
Sales Agent
Mobile: 0415 286 088 Office: 07 3343 3333 vCard: Download Office Profile: View
find our properties on squiiz.com.au
© 2026 RE/MAX Community Realty | Privacy Policy and Disclaimer